December 2023
Our Plan's are complete!
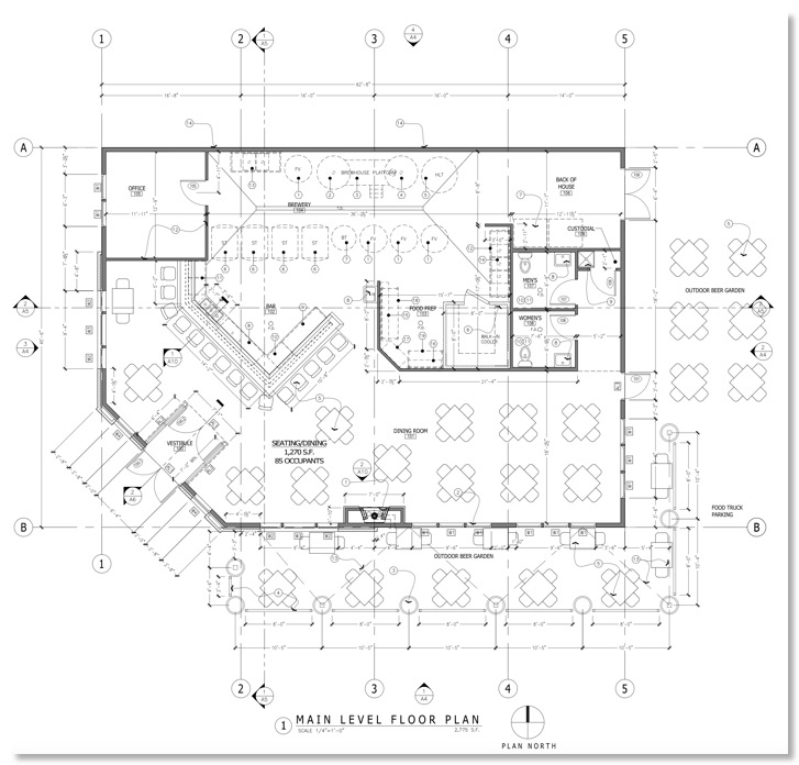
12/12/23 10:35
After many iterations from our original hand drawn design, our architect has finally put the finishing touches on our architectural plans, and has submitted them to the State for plan approval. This is what it's going to look like:




First Steps
07/12/23 15:44
Knowing that we were about to initiate a project that requires perfect planning and execution, we attended a small business planning class at UW Parkside so that we could eventually provide an accurate and descriptive business plan.

